Espace propriétaire
fr

Votre recherche

Descriptif de ce bien

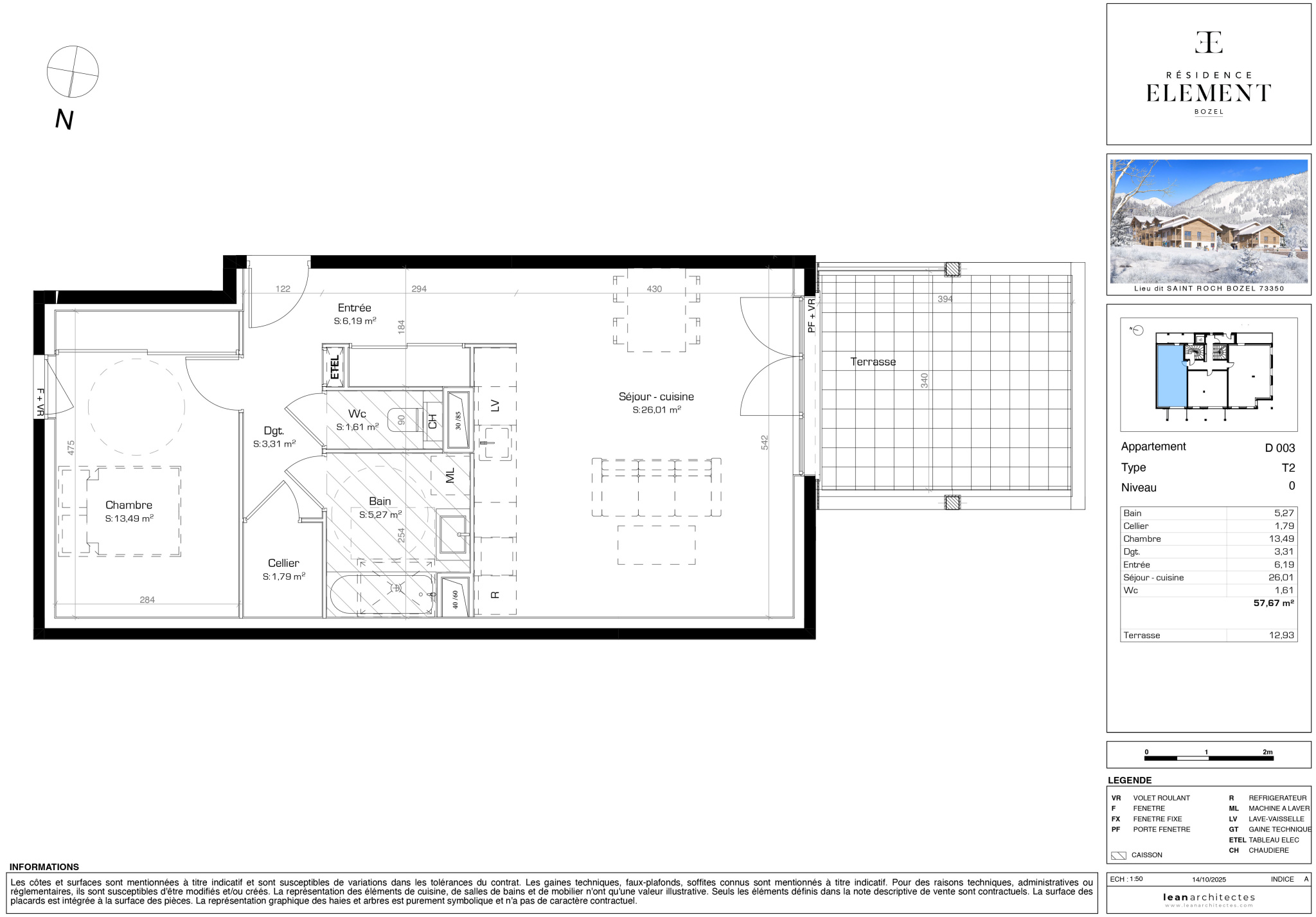
L'agence RMP Immobilier est fière de vous inviter à découvrir la tranche finale du programme neuf « ELEMENT », une opération Sogelym Dixence, situé au cœur de Bozel. Nous vous présentons les dernières opportunités à saisir dont un grand T2 situé dans le bâtiment D. Cet appartement de 57.67 m² habitables comprend 1 chambre, une belle pièce de vie avec accès direct à une grande terrasse en rez-de-jardin exposée Ouest. Ce bien est vendu avec un garage fermé (installation électrique possible pour la recharge d’un véhicule) et une cave individuelle. Vous apprécierez l’architecture alliant savoir-faire traditionnel et matériaux locaux dans une démarche respectueuse de l’environnement, ainsi que les nombreuses prestations proposées : Isolation thermique haute performance RT 2012, baies vitrées avec volets motorisés, placards intégrés, vidéophone, local à vélo sécurisé. Situé au pied de Courchevel, Bozel bénéficie d’une proximité privilégiée avec le domaine skiable réputé des 3 Vallées et apparaît comme un lieu idéal pour investir, notamment avec les Jeux Olympiques de 2030 et le futur projet de remontée mécanique. Livraison prévue fin juin 2026. Frais de notaire réduits. Cuisine non incluse. Photographies non contractuelles.

Général
Code postal 73350
Nombre de chambre(s) 1
Nombre de pièces 2
Ascenseur OUI
Vue montagne
copropriete NON
Statut du syndic pas de procédure en cours
Détails
Nb de salle de bains 1
Cuisine Sans
Mode de chauffage Gaz
Type de chauffage Radiateur
Format de chauffage Individuel
Visiophone OUI
Terrasse OUI
Nombre de garage 1
Cave OUI
Surface cave (m²) 5.67
Exposition Ouest
Année de construction 2025
Composition
Rez de chaussée
entrée 6.19 m²

séjour/cuisine 26.01 m²

chambre 13.49 m²

salle de bain 5.27 m²

cellier 1.79 m²

degagement 3.31 m²

WC 1.61 m²

Financier
Prix de vente 400 000 €
Les honoraires d'agence seront intégralement à la charge du vendeur  
Quartier
  • Commerces et santé
  • Loisirs
  • Ecoles
  • Transports
  • Pratique
Energie
DPE GES
Contacter pour ce bien
L'agence
Téléphone 0033 (0)479221050
Adresse
5 rue Emile Machet 73350 Bozel

* Champ obligatoire

Les informations recueillies sur ce formulaire sont enregistrées dans un fichier informatisé par La Boite Immo agissant comme Sous-traitant du traitement pour la gestion de la clientèle/prospects de l'Agence / du Réseau qui reste Responsable du Traitement de vos Données personnelles. La base légale du traitement repose sur l'intérêt légitime de l'Agence / du Réseau. Elles sont conservées jusqu'à demande de suppression et sont destinées à l'Agence / au Réseau. Conformément à la loi « informatique et libertés », vous disposez des droits d’accès, de rectification, d’effacement, d’opposition, de limitation et de portabilité de vos données. Vous pouvez retirer votre consentement à tout moment en contactant directement l’Agence / Le Réseau. Consultez le site https://cnil.fr/fr pour plus d’informations sur vos droits. Si vous estimez, après avoir contacté l'Agence / le Réseau, que vos droits « Informatique et Libertés » ne sont pas respectés, vous pouvez adresser une réclamation à la CNIL. Nous vous informons de l’existence de la liste d'opposition au démarchage téléphonique « Bloctel », sur laquelle vous pouvez vous inscrire ici : https://www.bloctel.gouv.fr Dans le cadre de la protection des Données personnelles, nous vous invitons à ne pas inscrire de Données sensibles dans le champ de saisie libre.
Ce site est protégé par reCAPTCHA, les Politiques de Confidentialité et les Conditions d'Utilisation de Google s'appliquent.

Découvrir nos outils